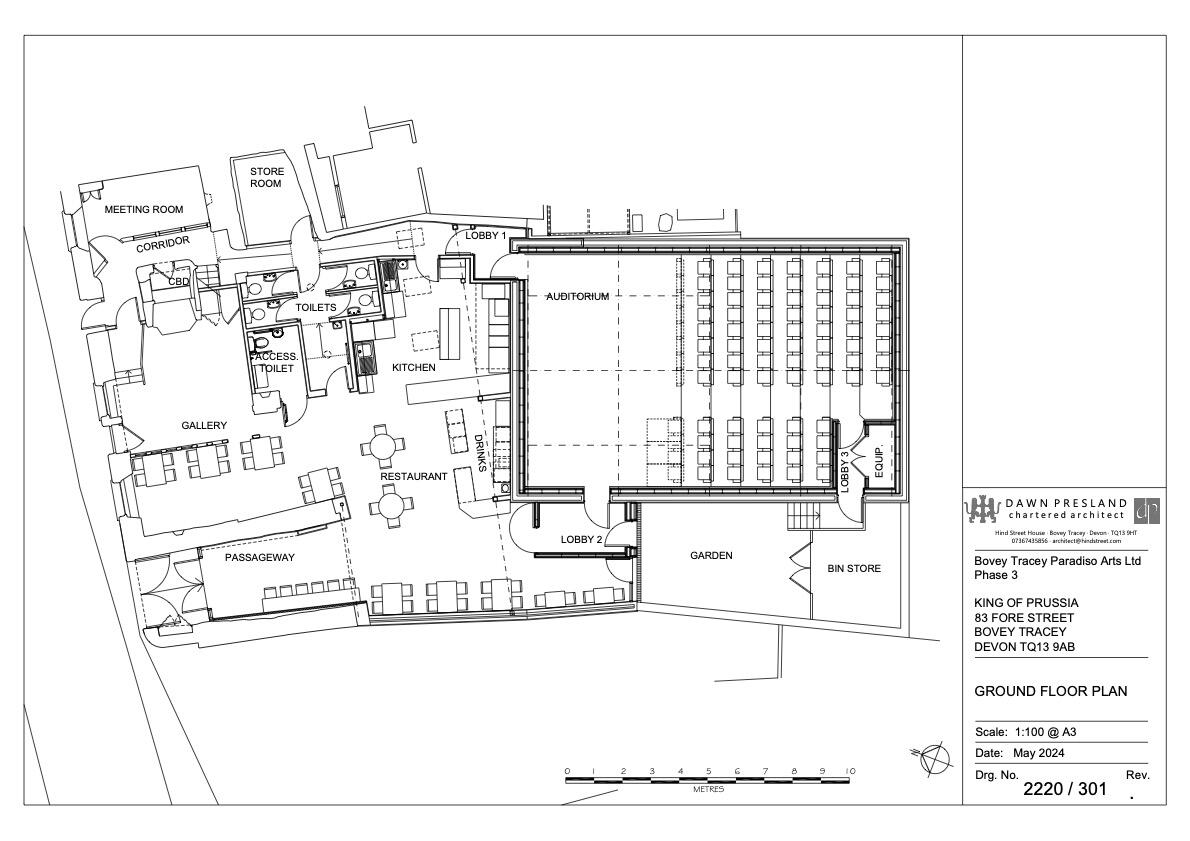
Auditorium
We are building a well-soundproofed auditorium with 80+ seats in the south-east corner of the site.
It will be a flexible entertainment space offering various configurations to best suit the type of entertainment, such as seating in rows, tabled seating for drinks and snacks, entertainment with dining, and private events. The facilities will include a projection screen for film, live streaming and stage for live performance such as, theatre, comedy music and presentations.

Cinema Plan
The cinema’s central location will mean that the majority of Bovey Tracey residents will be within a mile and therefore within walking distance. A significant attraction of a local cinema and theatre is the enhanced sense of community arising from meeting local friends and enjoying the same events.
The cinema will show current films (4 weeks after release), we would create a Film Club which chooses the films to be shown, and 3 times a month we would show live and recorded relays of theatre (Royal Shakespeare Company and National Theatre), opera and ballet (from Royal Opera House, Bolshoi, Met Opera New York, etc) and live music.
In addition to films, there would be live performances by the Bovey Tracey Players, visiting theatre groups, other small-scale theatrical productions, live comedy and poetry, classical and contemporary musical performances, as well as “open-mic” nights for aspiring performers, possibly combined with dining.
People from outlying areas, from neighbouring towns and villages such as Lustleigh, Chudleigh and Moretonhampstead, and from further afield, will be able to park in the town car parks less than 5 minutes’ walk away and currently free‐of‐charge after 6pm.
The development of the King of Prussia will therefore have the added bonus of drawing people who are new to the area, through the centre of town with its varied shops and services.
Theatre Plan
The theatre will provide great facilities for the performing arts community. Amateur dramatic performers (Bovey Tracey Players) will stage 3 shows each year in the theatre, but in addition we will welcome touring small-scale theatrical productions, live comedy and poetry, classical and contemporary musical performances, as well as “open-mic” nights for aspiring performers.
On Saturdays, we will run drama workshops for young people. The theatre will also be available for schools and youth groups to put on their productions.
We foresee that the theatre could also be used for workshops, such as creative writing, and those benefitting from good lighting and projection facilities, such as photography and drama.